1,2,3,4/16 Castles Drive TORQUAY VIC
Built for What’s Next.
A limited release of four premium warehouses in Torquay’s most tightly held industrial precinct, this latest offering within West Coast Business Park delivers quality, functionality, and long term value in equal measure.
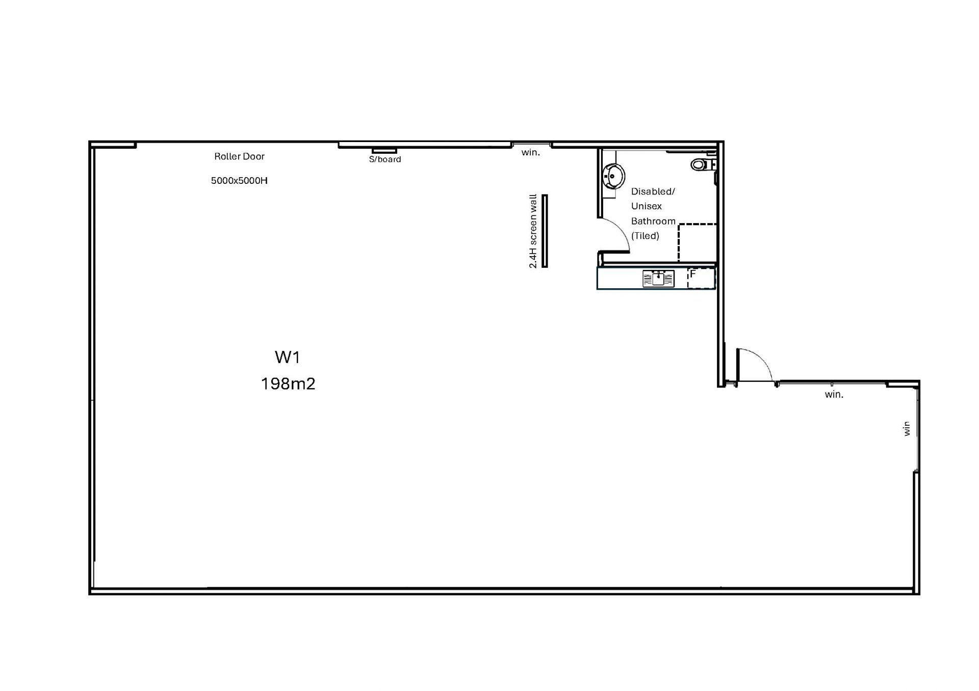
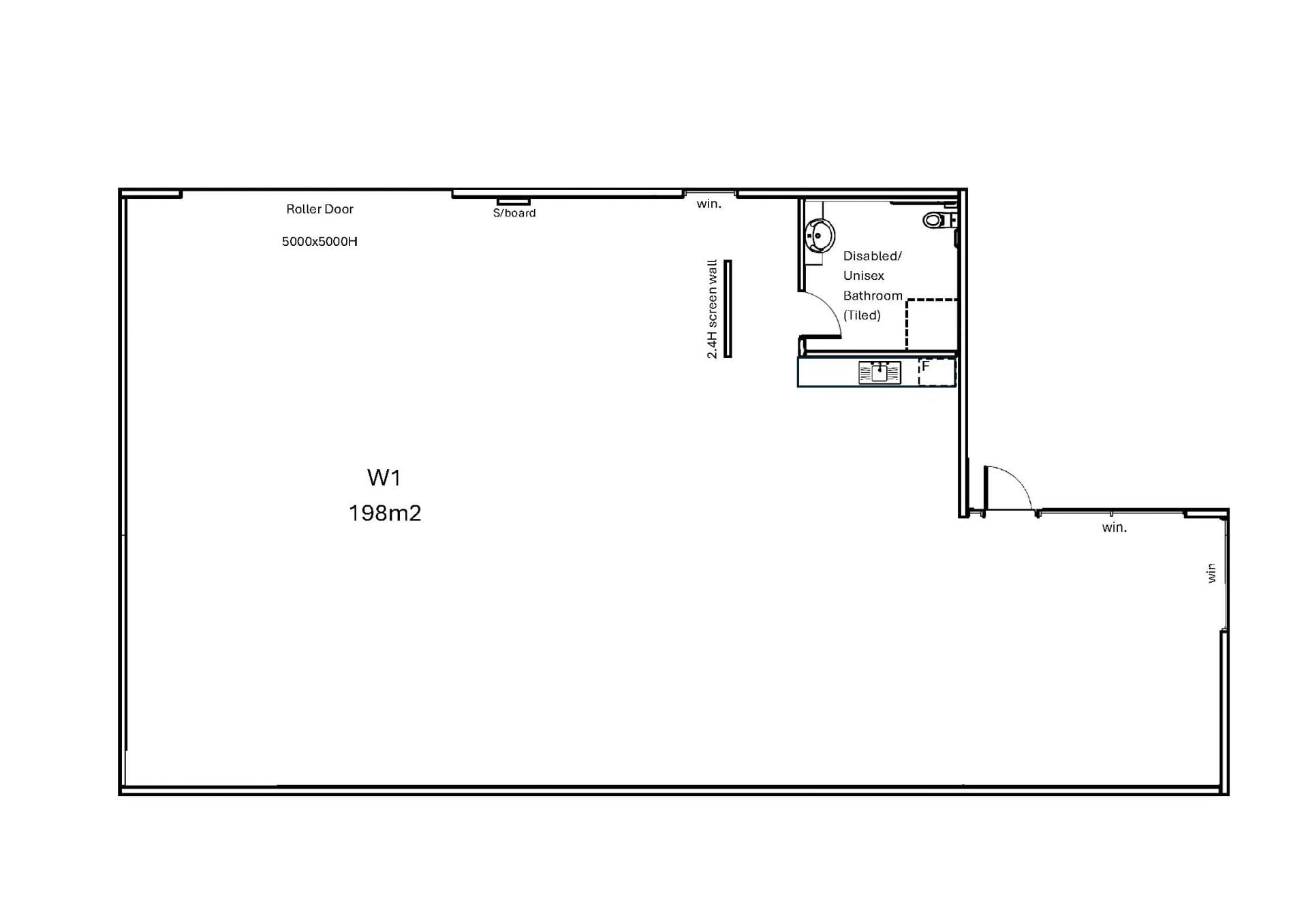
Designed for owner occupiers and investors who understand the importance of presentation, performance, and location, each warehouse has been thoughtfully designed and built to a standard rarely seen on the Surf Coast. All units include fully fitted amenities with shower facilities, ideal for trade based businesses and active operators.
The development comprises just four warehouse units:
Unit 1: approximately 198sqm with direct street frontage — $995,000
Unit 2: approximately 121sqm — $605,000
Unit 3: approximately 122sqm — $605,000
Unit 4: approximately 197sqm — $995,000
Each space offers an efficient clear span layout, strong internal clearance, excellent natural light and ventilation, large automatic roller doors, and practical amenities designed for real, day to day use.
Positioned just minutes from Torquay town centre, with seamless access to the Surf Coast Highway and key arterial routes, West Coast Business Park continues to attract strong owner occupier and investor demand. The precinct is well established, surrounded by quality developments, and zoned IN1Z (Industrial 1), allowing for a wide range of uses.
With limited new industrial supply coming to market and continued demand for well located, high quality product, opportunities within this precinct are becoming increasingly scarce.
Construction is scheduled to commence shortly, with early enquiry encouraged to secure your preferred unit.
Prices are plus GST
From $605,000
Property Type
Industrial
